咨詢熱線
13777594082


恭祝杭州瞳墨藝術培訓中心裝修設計開工大吉
來源: 浙江國富裝飾 瀏覽人數: 1102次 更新時間: 2023-01-31
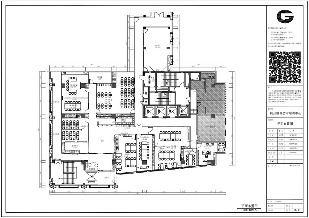
項目名稱:杭州瞳墨藝術培訓中心
項目地址:浙江省杭州市
施工公司:浙江國富裝飾
相關資質:設計乙級資質 施工貳級資質
公司介紹:
浙江國富裝飾設計工程有限公司成立于2008年,注冊資金5000萬,擁有國家住建部頒發:建筑裝飾工程設計乙級資質、建筑裝修裝飾工程貳級資質、消防設施工程專業貳級資質、電子與智能化工程貳級資質、防水防腐保溫工程貳級資質、建筑物糾偏和平移特種資質、建筑物結構補強特種資質、建筑裝修裝飾施工勞務資質、建筑安全生產許可證等專業資質證書;專業承接教育機構、培訓機構等空間策劃、設計、預算、施工、售后、消防、暖通、結構等系統化工裝服務品牌企業。
公司秉承“真誠、守信、創新、共贏”的企業經營理念,以滿足客戶的需求為己任,通過十幾年的穩健發展和沉淀,擁有專業資深設計團隊和工程管理團隊,已服務5000+經典客戶,獲得了業界廣泛的信任和認可,形成了品質化、規模化、規范化、專業化的服務優勢。
公司自成立以來,注重企業文化建設,打造成為有高度、有深度、有廣度的文化企業,樹立良好企業形象,憑借多方面優勢,榮獲“全國信用AAA企業”、“浙江省信用優秀企業”和“質量AAA級信用單位”等榮譽稱號,獲得裝飾領域多項發明和實用新型專利證書,成為浙江省消費者放心的知名品牌企業。
開工儀式



工地現場






設計平面圖

31
2023-01
聯系信息
手 機:13777594082(微信同號)微信公眾號二維碼

長按二維碼識別關注
裝修咨詢微信二維碼

長按二維碼識別添加